26380 Peyrins
Vend grande maison / Proche Romans sur Isère
Vend grande maison / Proche Romans sur Isère
Vend maison 250m²,
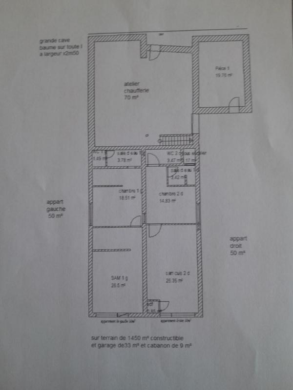
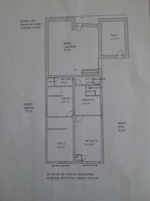
comprenant 1 appartement principal de 98m² à l'étage, avec grand salon, terrasse, cuisine, 2 chambres 13m², possibilité 3, wc sdb.
3 appartements de 50m² chacun, tous équipé de salon, cuisine, douche, wc, sdb, chauffage central, sous compteur eau et electricité.
Le tout pouvant être relié à l'appartement principal.
Chauffage central fioul par chaudière récente à condansation + chauffage bois et electricité . pac air air sur partie principal 5kw neuf
Le terrain fait 1470m² avec très grand parking, garage 33m² + cave + chaufferie + dépandance + forage + terrain constructible.
8 panneaux solaire neuf 3 kw sont installé sur le toit, ainsi qu une clim dans la parti principale.
classe énergétique C , climatique C , toiture nettoyée, traité,imperméabilisé révisée et faitage neuf
peut convenir à une grande famille ,ou à artisans ,profession libérale ,ou location ,très bon rapport
maison comprenant atuellement 6 grandes chambres,4 salons ,4 cuisines,4 toilettes ,4 chauffe eau,
4 sdb ,4 sous compteurs eau, electricité
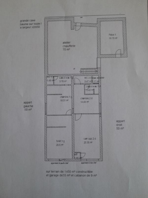
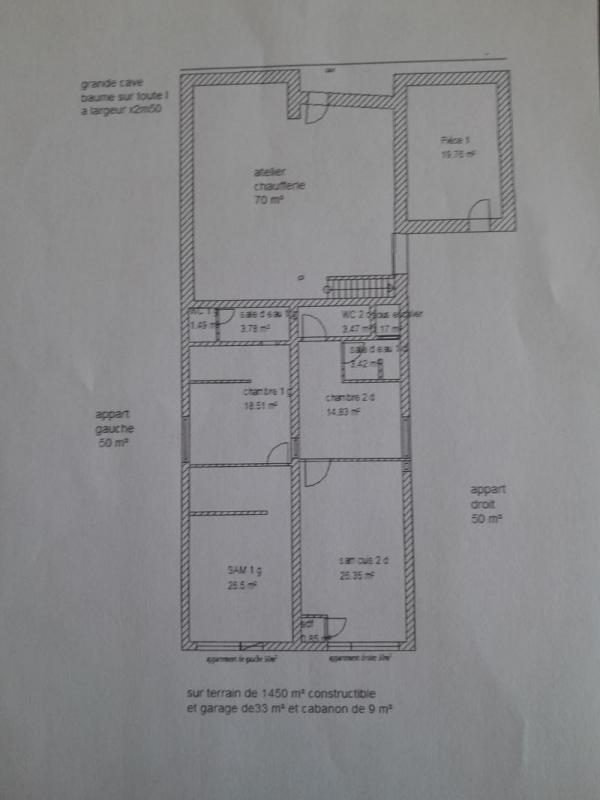
comprenant 1 appartement principal de 98m² à l'étage, avec grand salon, terrasse, cuisine, 2 chambres 13m², possibilité 3, wc sdb.
3 appartements de 50m² chacun, tous équipé de salon, cuisine, douche, wc, sdb, chauffage central, sous compteur eau et electricité.
Le tout pouvant être relié à l'appartement principal.
Chauffage central fioul par chaudière récente à condansation + chauffage bois et electricité . pac air air sur partie principal 5kw neuf
Le terrain fait 1470m² avec très grand parking, garage 33m² + cave + chaufferie + dépandance + forage + terrain constructible.
8 panneaux solaire neuf 3 kw sont installé sur le toit, ainsi qu une clim dans la parti principale.
classe énergétique C , climatique C , toiture nettoyée, traité,imperméabilisé révisée et faitage neuf
peut convenir à une grande famille ,ou à artisans ,profession libérale ,ou location ,très bon rapport
maison comprenant atuellement 6 grandes chambres,4 salons ,4 cuisines,4 toilettes ,4 chauffe eau,
4 sdb ,4 sous compteurs eau, electricité
360 000 €
250 m²
Code Postal
26380
Ville
Peyrins
Type de bien
Maison
GES
C
Classe énergie
C
Mise en ligne
9 juillet 2025
Nombre de vues
5 926