69007 Lyon
APARTEMENT T2 DE 45,63 M²
APARTEMENT T2 DE 45,63 M²
Direct propriétaire ! Aucun travaux à prévoir !
Déposer vos valises et installer-vous dans ce charmant 2 pièces de 45.63 m² loi Carrez, traversant Est-Ouest.
Agencement optimal et fonctionnel, associant le charme de l’ancien et du neuf ou tout a été entièrement réaménagé et rénové à neuf aux normes en Février 2025.
Une hauteur sous plafond de 3m, un magnifique parquet d'Aremberg et une cheminée ancienne.
Au 1er étage/2 d’une petite copropriété sécurisée avec Vigic et interphone.
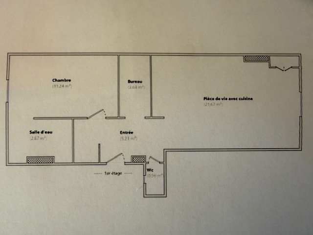
Ce lumineux 2 pièces traversant qui se compose d’une entrée-couloir desservant :
- La cuisine ouverte entièrement équipée.
- Le salon séjour.
- L’espace nuit au calme sur cour et jardin, une grande chambre avec dressing et salle de bain.
- Un bureau ideal pour le télétravail ou un étudiant mais qui peut se transformer en chambre enfant ou autre.
- WC indépendant.
- Un coin lingerie et placard.
- Pas de soucis de stationnement avec de nombreuses places en bas de la copropriété et actuellement une place de stationnement sécurisée en sous-sol en location.
- Situation géographique idéale au sein d'un quartier en plein essor Route de Vienne 7° arrondissement à proximité des écoles, des transports, des commerces et de toutes commodités.
- Tram T2 direct Perrache à200 mètres.
- Tram T4 direct La Doua, Manufacture des Tabacs, Part Dieu à 800 mètres.
- Gare Jean Macé à 900 mètres et Métro B direct Part Dieu à 900 mètres.
- Métro D Bellecour et Grange blanche à 1,4 km.
- Bus C12 et 35 Bellecour et Jean Macé à 170 mètres.
- Vélo’ve à 170 mètres.
Copropriété pas de procédure en cours Nombre de lots 8.
Faibles charges 67€/mois.
Taxes foncières 543€.
DPE C Date de réalisation du diagnostic énergétique : 12/03/2026.
L’appartement peut être vendu entièrement meublé.
Déposer vos valises et installer-vous dans ce charmant 2 pièces de 45.63 m² loi Carrez, traversant Est-Ouest.
Agencement optimal et fonctionnel, associant le charme de l’ancien et du neuf ou tout a été entièrement réaménagé et rénové à neuf aux normes en Février 2025.
Une hauteur sous plafond de 3m, un magnifique parquet d'Aremberg et une cheminée ancienne.
Au 1er étage/2 d’une petite copropriété sécurisée avec Vigic et interphone.
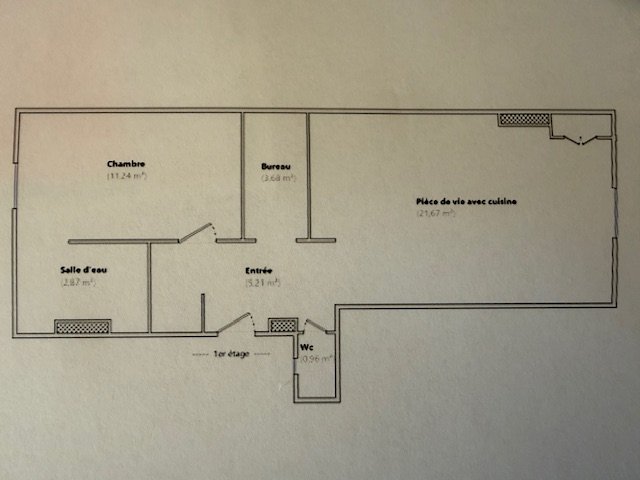
Ce lumineux 2 pièces traversant qui se compose d’une entrée-couloir desservant :
- La cuisine ouverte entièrement équipée.
- Le salon séjour.
- L’espace nuit au calme sur cour et jardin, une grande chambre avec dressing et salle de bain.
- Un bureau ideal pour le télétravail ou un étudiant mais qui peut se transformer en chambre enfant ou autre.
- WC indépendant.
- Un coin lingerie et placard.
- Pas de soucis de stationnement avec de nombreuses places en bas de la copropriété et actuellement une place de stationnement sécurisée en sous-sol en location.
- Situation géographique idéale au sein d'un quartier en plein essor Route de Vienne 7° arrondissement à proximité des écoles, des transports, des commerces et de toutes commodités.
- Tram T2 direct Perrache à200 mètres.
- Tram T4 direct La Doua, Manufacture des Tabacs, Part Dieu à 800 mètres.
- Gare Jean Macé à 900 mètres et Métro B direct Part Dieu à 900 mètres.
- Métro D Bellecour et Grange blanche à 1,4 km.
- Bus C12 et 35 Bellecour et Jean Macé à 170 mètres.
- Vélo’ve à 170 mètres.
Copropriété pas de procédure en cours Nombre de lots 8.
Faibles charges 67€/mois.
Taxes foncières 543€.
DPE C Date de réalisation du diagnostic énergétique : 12/03/2026.
L’appartement peut être vendu entièrement meublé.
225 000 €
46 m²
Code Postal
69007
Ville
Lyon
Type de bien
Appartement
GES
A
Classe énergie
C
Mise en ligne
23 avril 2026
Nombre de vues
92