42000 Saint-Étienne
Maison de ville avec jardin et locatif
Maison de ville avec jardin et locatif
Nous proposons à la vente une maison de ville en triplex avec jardin dans le quartier de La Terrasse.
A proximité immédiate de tous les commerces, services, écoles et collège, à 300m du Tram, 400m de la gare SNCF, à 100m d’une station Vélivert, à 500 m de l’accès autoroute.
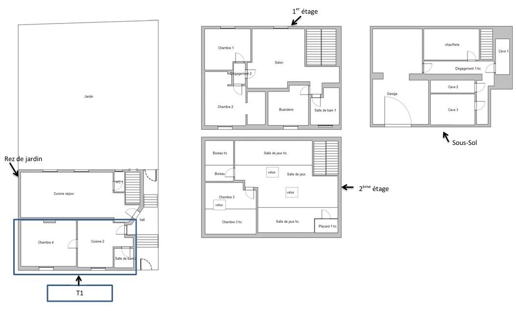
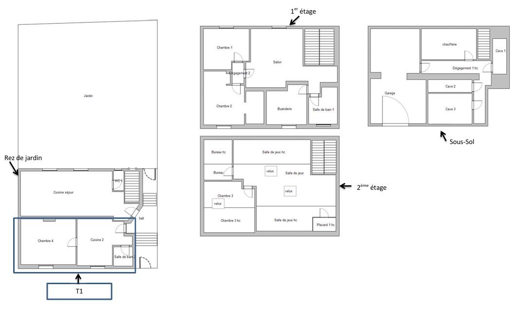
Cette maison est constituée de 2 lots.
Une partie à usage d'habitation principale qui se compose comme ceci :
Au rez-de-chaussée : une grande cuisine équipée (four, plaque, frigo, congélateur, lave-vaisselle) de 31m² ouverte sur le jardin de 135m² et un WC.
Au 1er étage : un salon de 25m² donnant sur le jardin, une suite parentale de 17m² avec douche et dressing, une chambre de 11.5m², une buanderie avec fenêtre (pouvant devenir chambre) de 10m², une salle de bain italienne avec baignoire et WC.
Au 2ème étage : un espace sous le toit avec charpente traditionnelle apparente composé d'une grande salle avec velux de 46m² dont 23m² loi carrez, d'une chambre avec velux de 16m² dont 9m² loi carrez et d'un bureau de 7.5m².
En sous-sol, un garage de 32m², une chaufferie, une cave.
En plus la maison comprend aussi un locatif indépendant, il s'agit d'un T1 de 32m² avec une pièce principal, une cuisine, une salle de bain toilette et une cave en sous-sol. Actuellement loué, il permet d'encaisser un revenu locatif de 380€ par mois, il se loue toujours sans problème.
Une réhabilitation complète (charpente, toiture, chauffage, isolation, électricité ...) a été faite en 2011, permettant au bâtiment d'avoir un DPE de C. Rafraichissement complet effectué en décembre 2024.
Agence et Curieux s'abstenir.
A proximité immédiate de tous les commerces, services, écoles et collège, à 300m du Tram, 400m de la gare SNCF, à 100m d’une station Vélivert, à 500 m de l’accès autoroute.
Cette maison est constituée de 2 lots.
Une partie à usage d'habitation principale qui se compose comme ceci :
Au rez-de-chaussée : une grande cuisine équipée (four, plaque, frigo, congélateur, lave-vaisselle) de 31m² ouverte sur le jardin de 135m² et un WC.
Au 1er étage : un salon de 25m² donnant sur le jardin, une suite parentale de 17m² avec douche et dressing, une chambre de 11.5m², une buanderie avec fenêtre (pouvant devenir chambre) de 10m², une salle de bain italienne avec baignoire et WC.
Au 2ème étage : un espace sous le toit avec charpente traditionnelle apparente composé d'une grande salle avec velux de 46m² dont 23m² loi carrez, d'une chambre avec velux de 16m² dont 9m² loi carrez et d'un bureau de 7.5m².
En sous-sol, un garage de 32m², une chaufferie, une cave.
En plus la maison comprend aussi un locatif indépendant, il s'agit d'un T1 de 32m² avec une pièce principal, une cuisine, une salle de bain toilette et une cave en sous-sol. Actuellement loué, il permet d'encaisser un revenu locatif de 380€ par mois, il se loue toujours sans problème.
Une réhabilitation complète (charpente, toiture, chauffage, isolation, électricité ...) a été faite en 2011, permettant au bâtiment d'avoir un DPE de C. Rafraichissement complet effectué en décembre 2024.
Agence et Curieux s'abstenir.
280 000 €
175 m²
Code Postal
42000
Ville
Saint-Étienne
Type de bien
Maison
GES
C
Classe énergie
C
Mise en ligne
10 mars 2026
Nombre de vues
1 562