38690 Colombe
Maison individuelle
Maison individuelle
Charmante maison située à Colombe dans l'Isère, proche de la route communale qui dessert l'accès à 2kms de l'autoroute Grenoble/Lyon d'un côté et l'accès à la gare SNCF à 1KM500 de l'autre côté. Centre commercial important tout près.
Maison avec beaucoup de cachet sur 2 niveaux d'une superficie de 211m² édifiée sur un terrain clôturé et arboré de 350m², comprenant au rez-de-chaussée : une spacieuse et lumineuse pièce de vie orientée sud faisant office de séjour/salle à manger, équipée d'un poêle à granules chauffant tout le bas. Une cuisine américaine moderne et très fonctionnelle entièrement équipée. Une suite parentale de 14m², armoire encastrée, et sa salle d'eau de 10m² avec double vasque, douche à l'italienne, WC suspendu, sèche serviette. Buanderie de 5m² avec fenestron un WC suspendu. Dans le prolongement cellier rangement de 9m².
Deux entrées indépendantes avec leurs propres escaliers pour l'accès à l'étage.
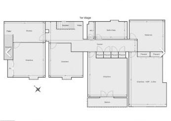
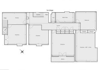
A l'étage, un vaste palier dessert quatre grandes chambres avec de beaux volumes et de nombreux rangements. Accolée au palier, une vaste chambre de 21m² avec placard aménageable éventuellement en petite salle d'eau (arrivée d'eau tirée). Un grand couloir muni de placards profonds. Deuxième chambre de 20m². Troisième chambre de 20m² avec balcon. Quatrième chambre de 25m² avec grand placard. Une pièce dite aveugle de 13m² pouvant servir de dressing. Un troisième WC suspendu séparé de la salle d'eau de 7m² avec double vasque et rangements.
Garage double en longueur de 36m² avec fosse pour réparation voiture.
A l'extérieur, un espace jardin de 350m² équipé de deux abris de jardin de 5m² chacun, en plus un appenti fermé de 12m² avec mezzanine.
Chauffage électrique dans chaque pièce, possibilité chauffage au gaz (chaudière récente 6 ans).
Double vitrage. Installation d'un poêle à granules en 2024.
Prix revu à la baisse.
Taxe foncière 935 euros par an.
Portail électrique.
Maison avec beaucoup de cachet sur 2 niveaux d'une superficie de 211m² édifiée sur un terrain clôturé et arboré de 350m², comprenant au rez-de-chaussée : une spacieuse et lumineuse pièce de vie orientée sud faisant office de séjour/salle à manger, équipée d'un poêle à granules chauffant tout le bas. Une cuisine américaine moderne et très fonctionnelle entièrement équipée. Une suite parentale de 14m², armoire encastrée, et sa salle d'eau de 10m² avec double vasque, douche à l'italienne, WC suspendu, sèche serviette. Buanderie de 5m² avec fenestron un WC suspendu. Dans le prolongement cellier rangement de 9m².
Deux entrées indépendantes avec leurs propres escaliers pour l'accès à l'étage.
A l'étage, un vaste palier dessert quatre grandes chambres avec de beaux volumes et de nombreux rangements. Accolée au palier, une vaste chambre de 21m² avec placard aménageable éventuellement en petite salle d'eau (arrivée d'eau tirée). Un grand couloir muni de placards profonds. Deuxième chambre de 20m². Troisième chambre de 20m² avec balcon. Quatrième chambre de 25m² avec grand placard. Une pièce dite aveugle de 13m² pouvant servir de dressing. Un troisième WC suspendu séparé de la salle d'eau de 7m² avec double vasque et rangements.
Garage double en longueur de 36m² avec fosse pour réparation voiture.
A l'extérieur, un espace jardin de 350m² équipé de deux abris de jardin de 5m² chacun, en plus un appenti fermé de 12m² avec mezzanine.
Chauffage électrique dans chaque pièce, possibilité chauffage au gaz (chaudière récente 6 ans).
Double vitrage. Installation d'un poêle à granules en 2024.
Prix revu à la baisse.
Taxe foncière 935 euros par an.
Portail électrique.
349 000 €
211 m²
Code Postal
38690
Ville
Colombe
Type de bien
Maison
GES
D
Classe énergie
D
Mise en ligne
28 avril 2026
Nombre de vues
86