26390 Hauterives
Maison hors d'eau, hors d'air, À personnaliser !
Maison hors d'eau, hors d'air, À personnaliser !
Belle opportunité pour les bricoleurs créatifs et les amoureux de projets sur mesure : maison hors d'eau, hors d'air, idéalement située à Hauterives (Lieu-Dit "Chamonay").
Ce projet se situe à l'extérieur du centre du village d'Hauterives, en direction du Nord Est, dans un quartier très calme bénéficiant d'une ossature déjà terminée (structure porteuse, toiture, volets électriques et porte de garage électrique et menuiseries extérieures en place).
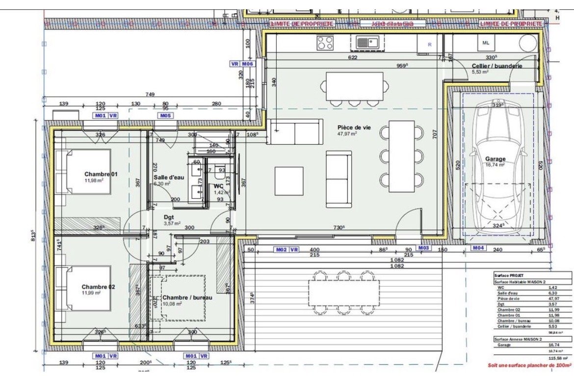
L'habitation offre 100 m² de surface habitable + 21 m² surface annexe (garage, portail électrique). Implanté sur un terrain de 300 m².
L'extérieur dispose d'un terrain non clôturé.
Viabilité à 20 mètres.
Cette maison bénéficie d'un prix très attractif par rapport à une construction neuve équivalente, tout en gardant la liberté de 175 000€ choisir chaque détail : finitions, matériaux, équipements (chauffage, cuisine, salles de bains, parquet, revêtements ...).
Parfait pour ceux qui veulent une maison 100% personnalisée et un investissement sur mesure.
Idéale pour un couple, une famille ou un investisseur souhaitant construire un projet patrimonial à long terme.
-> Rapport qualité/prix rare sur le marché, à saisir rapidement !
Ce projet se situe à l'extérieur du centre du village d'Hauterives, en direction du Nord Est, dans un quartier très calme bénéficiant d'une ossature déjà terminée (structure porteuse, toiture, volets électriques et porte de garage électrique et menuiseries extérieures en place).
L'habitation offre 100 m² de surface habitable + 21 m² surface annexe (garage, portail électrique). Implanté sur un terrain de 300 m².
L'extérieur dispose d'un terrain non clôturé.
Viabilité à 20 mètres.
Cette maison bénéficie d'un prix très attractif par rapport à une construction neuve équivalente, tout en gardant la liberté de 175 000€ choisir chaque détail : finitions, matériaux, équipements (chauffage, cuisine, salles de bains, parquet, revêtements ...).
Parfait pour ceux qui veulent une maison 100% personnalisée et un investissement sur mesure.
Idéale pour un couple, une famille ou un investisseur souhaitant construire un projet patrimonial à long terme.
-> Rapport qualité/prix rare sur le marché, à saisir rapidement !
175 000 €
100 m²
Code Postal
26390
Ville
Hauterives
Type de bien
Maison
GES
En cours
Classe énergie
En cours
Mise en ligne
31 mars 2026
Nombre de vues
279